Попереднє замовлення
id товару:
90297
Термін виготовлення: 31 днів

D
Rw
0.66
D клас - це базова енергоефективнысть для обєктів з центральним опаленням. Конструкції D класу стануть чудовим вибором для засклення неопалювального балкону або балконного виходу.
Назовні:
LIGHT_OAK
Всередину:
LIGHT_OAK
Опис товару
Технічні характеристики
Тип:
Вхідні двері
Форма конструкції:
Одна стулка
Відкривання:
Поворот
Rw:
0.66 m²K/W
Розмір (ширина x висота):
900x2200 мм
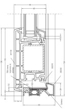
Поперечні перерізи

Фото


+ 3 фотографій
Відгуки та запитання клієнтів

Попереднє замовлення
id товару:
90297
Залиште відгук
Термін виготовлення: 31 днів
Ціна по запиту
1. Основні параметри
Розмір (ширина x висота):
Відкривання:
Комплектація:
Колір ззовні:
Колір зсередини:
Склопакет:
2. Аксесуари
Виступаючі пороги:
Дверна нажимна ручка:
Дверні петлі:
Звичайні замки:
Інше:
3. Послуги
+ ₴500.00
0 Відгуків